Schulbau

Unsere Projekte

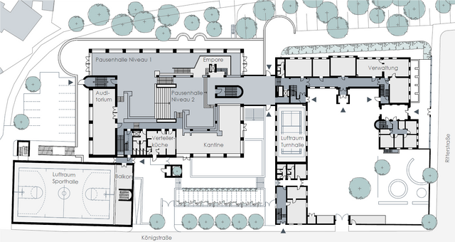
Modernisierung und Sanierung der Duborg Skolen, Flensburg

Bau­herr:

Dansk Sko­le­fo­re­ning for Syds­les­vig e.V.

Bau­zeit:

10.2016 – 10.2019 in 2 Bau­ab­schnit­ten

Nutz­flä­che:12.550 m²
Um­bau­ter Raum:69.100 m³

Erweiterung der denkmalgeschützten Schulanlage aus den Jahren 1922 und 1977 um einen Fachklassentrakt als Aufstockung der Sporthalle.

Brandschutzsanierung, Umgestaltung von Klassen- und Fachräumen sowie der mehrgeschossigen Pausenhalle mit Ausbau zur Versammlungsstätte sind die wesentlichen Eingriffe.

Kontakt aufnehmen

Schulbau Projekte